佐賀市大和町尼寺第24 1号棟

2,788万円

佐賀県佐賀市大和町大字尼寺3546

長崎本線「佐賀」駅徒歩65分

長崎本線「鍋島」駅徒歩79分

価格
2,788万円
間取り/建物面積
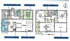
4LDK/98.87㎡
所在地
佐賀県佐賀市大和町大字尼寺3546
築年
2026年3月(予定)
駐車
有(3台)
交通

長崎本線佐賀」駅 徒歩65分

長崎本線鍋島」駅 徒歩79分

佐賀市大和町尼寺第24 1号棟の基本情報

物件名
佐賀市大和町尼寺第24 1号棟
価格
2,788万円
建物面積
98.87㎡
土地面積
54.07坪(178.77㎡)
築年月
2026年3月(予定)
総戸数
-
所在地
佐賀県佐賀市大和町大字尼寺3546
交通

長崎本線佐賀」駅 徒歩65分

長崎本線鍋島」駅 徒歩79分

佐賀市大和町尼寺第24 1号棟の詳細情報

設備条件
  • 閑静な住宅地
  • 建設住宅性能評価書付
  • 駐車3台可
  • 耐震構造
  • 宅配ボックス
設備(その他)
    -
駐車場/月額
有(3台)/0円
土地権利
所有権
国土法届出
不要
用途地域
無指定
取引態様
一般媒介
引渡し
2026年3月下旬
備考
こだわりポイント満載の佐賀市大和町尼寺第24 1号棟。築2年以内の物件ですので、外観もキレイです。内外装共に綺麗な新築戸建ての物件はいかがでしょうか。地震のエネルギーを吸収する、制震構造になっています。佐賀市内の不動産情報をより求めるのであれば、お気軽に当社までご連絡ください。お問い合わせは、お電話またはメールから承っております。

佐賀市大和町尼寺第24 1号棟のコメント(おすすめポイント)

佐賀市大和町尼寺第24 1号棟:長崎本線佐賀駅にも近くて便利☆築2年以内の築浅物件です☆こちらは清潔感のある新築戸建て物件です☆技術が進歩してきている制震構造で、地震を防いでくれます☆佐賀市にあるこちらの一戸建てに関して、何かご不明な点などがございましたら、ぜひお問い合わせください☆内覧予約なども承っております(*´ω`*)

佐賀市大和町尼寺第24 1号棟で募集中の物件

  1. 29.90坪 (98.87㎡)

    2,788万円(93.24万円/坪)

周辺施設

  • セブンイレブン 佐賀大和尼寺店の画像

    コンビニエンスストア

    セブンイレブン 佐賀大和尼寺店

    293m(4分)

  • イオンモール佐賀大和の画像

    スーパー

    イオンモール佐賀大和

    592m(8分)

  • 佐賀銀行大和町支店の画像

    銀行

    佐賀銀行大和町支店

    1054m(14分)

  • 佐賀市立春日小学校の画像

    小学校

    佐賀市立春日小学校

    1180m(15分)

  • 佐賀市立大和中学校の画像

    中学校

    佐賀市立大和中学校

    1626m(21分)

近隣の物件

  1. 佐賀市光3丁目

    4LDK (98.81㎡)

    2,588万円

  2. 佐賀市本庄町大字本庄

    4LDK (107.64㎡)

    3,198万円

  3. 佐賀市本庄町大字本庄

    4LDK (108.47㎡)

    3,098万円

  4. 佐賀市本庄町大字本庄

    4LDK (104.33㎡)

    3,198万円

佐賀市大和町尼寺第24 1号棟

お気軽にお問い合わせください

無料お問い合わせ

もっと駅前不動産株式会社

0120-800-771

9:45~18;30

(休:水曜日)